Produkte Unser Leitmotiv „Technik für Umweltschutz“ steht im Mittelpunkt der Produktentwicklung und prägt so schon lange einen sehr grossen Teil des Produktsortiments. Mehr Informationen Branchen & Themen Branchen & Themen Übersicht Heizölkomponenten AFRISO Smart Home AFRISO Smart Home Übersicht Gateway HG 02 Sensoren und Aktoren Sensoren und Aktoren Übersicht Gateway Produkte Sicherheit Komfort Raumklima AFRISOhome App Alexa Smart Home Anwendungen Smart Home Anwendungen Übersicht Sicherheit Komfortable Heizkörperregelung Leckagesicherheit Intelligente Fussbodenheizung Stand-Alone Anwendungen Stand-Alone Anwendungen Übersicht Wasserleckage-Detektion Raumklima Einbruchschutz Alarmanlage Smart Home Einstieg Handwerk 4.0 Handwerk 4.0 Übersicht EUROLYZER® CAPBs®-Sets CAPBs®-Sets Übersicht App Wasseranalyse Leitungsprüfung Druckmessung Heizungstechnik Konzentrationsmessung Temperatur OEM-Verteilersysteme Hydraulischer Abgleich Hydraulischer Abgleich Übersicht Vario-DP VarioQ Tankumnutzung Hygienische Prozesse Service-Center Service-Center Übersicht Geräte-Service Ansprechpartner Kataloge Service-Center Flexibel, kostenbewusst, termintreu, lösungsorientiert und schnell – das AFRISO-Team bietet immer den entscheidenden Mehrwert. Mehr Informationen Messen Suche
Service-Center Flexibel, kostenbewusst, termintreu, lösungsorientiert und schnell – das AFRISO-Team bietet immer den entscheidenden Mehrwert. Mehr Informationen Messen Suche
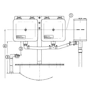
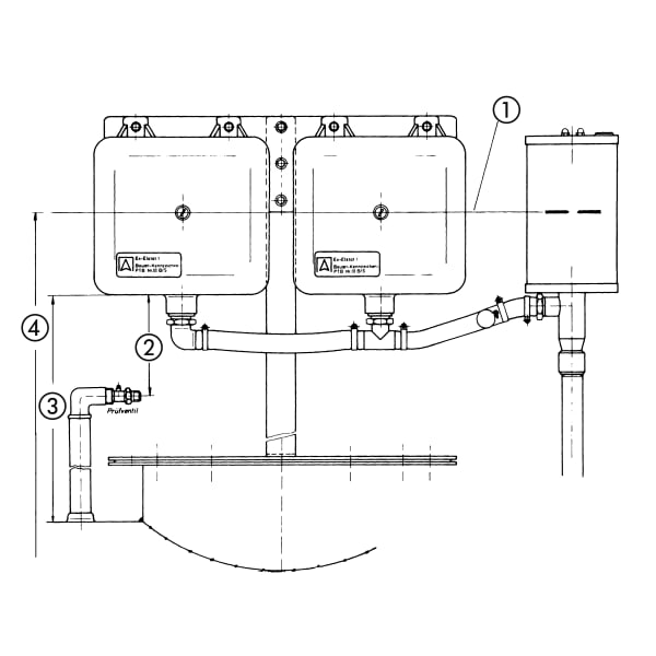
Höhe unbedingt einhalten min. 100 mm min. 500 mm bis zur Tanksohle max. 5 m Bilder 2 Montageset Leckanzeige-Sichtgeräte Ausführungen Ausführungen Ausführungen Art.-Nr.Montageset LAS 0Prüfventil43529Montageset LAS 143530Montageset LAS 243531Montageset LAS 343532Montageset LAS 443533 Lagerware Fertigungsware